Project OVerview
It has become more common for University employees to live outside of Sewanee, in some cases up to 50 miles away. With increasing housing prices in the Sewanee area and low availability, this initiative is intended to provide additional living options for employees. The primary goals of this project are to:
- Satisfy unmet demand for apartments by employees,
- Provide a housing option for those not seeking a single-family home, and
- Provide a different rental option for those seeking to be closer to campus.
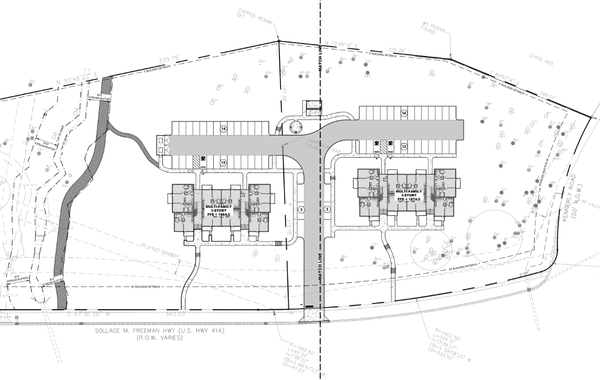
The leasehold site is approximately 6.4 acres in size, and the project contemplates construction of two three-story buildings, each with 24 apartment units. The project also incorporates construction of a portion of the Heritage Trail, extending it from the St. Mark’s Community Center to the sidewalk on Hwy. 41A.
This project is being led by Arlington Construction of Birmingham, in collaboration with Barge Civil Engineering, Baker Barrios Architects, and University employees. Construction is expected to begin in early 2026 with an expected completion date in late 2027.
SITE PLANS

ARTIST RENDERING FROM HWY. 41A

Apartment 3D model Flythrough
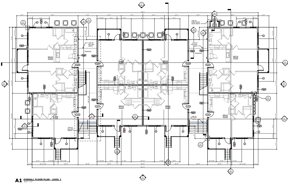
APARTMENT FLOOR PLANS

BY THE NUMBERS
Below are some key facts and figures related to the two three-story buildings.
|